146 Lamar StreetOmega, GA 31775




Mortgage Calculator
Monthly Payment (Est.)
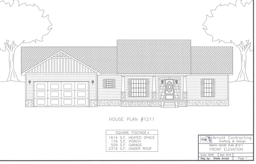
$1,518Even though it sounds too good to be true, here it is! A custom built new construction home under $350,000! Located in the quiet community of Omega convenient to both Tifton and Moultrie this a 3 bedroom/2 bathroom home has all of the features you could ask for with no expense spared! !!This home is in earlier stages, choose your own paint color and flooring!! This split floor plan home has 9 foot ceilings throughout with each bedroom having a large walk in closet! The master bathroom has a large walk in tile shower and double vanity. There is plenty of outside space to relax and entertain with the large front porch or covered rear patio overlooking the pecan trees! Enjoy quiet community living for a fraction of the price! Located in a highly desirable primary school district!
| 2 months ago | Listing updated with changes from the MLS® | |
| 2 months ago | Listing first seen on site |
Listing information is provided by Participants of the Tift Area Board of REALTORS. IDX information is provided exclusively for personal, non-commercial use, and may not be used for any purpose other than to identify prospective properties consumers may be interested in purchasing. Information is deemed reliable but not guaranteed. Copyright 2026, Tift Area Board of REALTORS
Last checked 2026-02-04 06:02 AM UTC

Did you know? You can invite friends and family to your search. They can join your search, rate and discuss listings with you.